Herzogin Garten Dresden

Vous voulez une vue à couper le souffle ?

Le bâtiment de l'orangerie, presque entièrement détruit pendant la Seconde Guerre mondiale, a été reconstruit en 2019 dans une symbiose parfaite entre modernité et histoire. On y trouve désormais des appartements et des unités commerciales à l'architecture unique en plein centre-ville de Dresde. L'un des points forts de ce bâtiment est la vue imprenable sur le parc. magnifique parc. Cette vue étendue est rendue possible par les élégants éléments de fenêtres de rp fineline qui recouvrent les ailes.

Factbox:

Système:
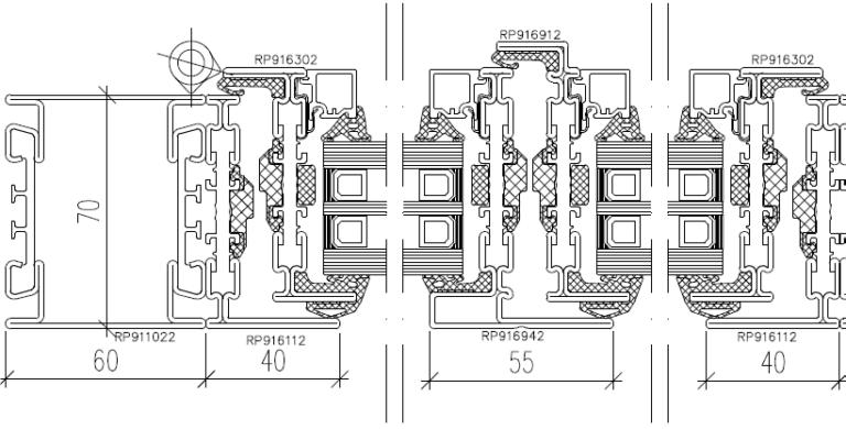
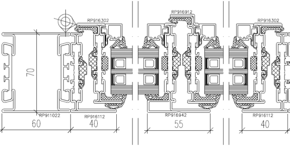
Stahl-Fenster-System rp fineline 70W & rp hermetic 70W
Architecte:
Matthias-Maria Kolb GmbH & Co. KG
Exécution:
Metallbau Drechsler GmbH
Client:
SAAL GmbH
Photographe:
Fotodesign Andreas Braun, Hameln
Querschnitt